二期磨煤机出口气动插板门异常关闭原因分析
2022-07-19 09:58:17
IOS/安卓通用版/手机APP入口阀门
二期磨煤机出口气动插板门异常关闭原因分析
一、事件经过
#4炉“F磨出口气动插板门1”05月10日22:36,05月11日08:24、08:41,05月20日00:19, 05月29日12:45共发生5次异常关闭现象。#4炉F11、F12粉管风速由26-29m/s降至0,检查发现#4炉F1插板门关闭,远方开启#4炉F1插板门,#4炉F11、F12粉管风速恢复正常。就地检查发现,#4炉给煤机平台有检修人员,经询问,未进行F磨气动插板门相关工作。调阅仪用压缩空气压力曲线发现历次异常关闭期间,压缩空气压力均为0.69MPa无异常变化。查阅DCS运行操作记录,远方、就地均未进行#4炉F磨出口气动插板门相关操作



二、检查情况
#4炉F磨出口气动插板门1在全开状态时,触碰全关到位开关连杆,F磨出口气动插板门1自动关闭,检查F磨其他出口气动插板门无此现象。

三、原因分析

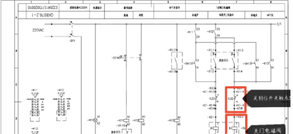
检查关到位行程开关共有4组触点:
触点1:常开点,220V AC,送至DCS的关反馈信号
触点2:常开点,220V AC,送至就地控制柜关反馈指示灯
触点3:常闭点,不带电,闭合后允许关指令发出(即关到位开关未触发时关指令才能正常发出)
触点4:常闭点,备用,未接线

关到位开关触点3串入插板门关门电磁阀控制回路,插板门全开时此触点为闭合状态(本身不带电),DCS关指令发出后控制回路闭合,关门电磁阀带电动作,插板门关闭。
检查关到位开关损坏,触点2和触点3之间间歇性导通,触点2中的220V交流电串入触点3,导致DCS关指令未发出时关门电磁阀异常带电动作,磨出口气动插板门自动关闭
四、解决方案
1、更换新的行程开关。
2、取消触点3断开后闭锁关指令发出功能(控制柜内短接端子实现)
TAG:
气动插板门